U ponudi su dva dvosobna stana smještena na prvom katu moderne novogradnje s ukupno šest stambenih jedinica, što budućim vlasnicima osigurava mir, privatnost i ugodno stanovanje. Zgrada je projektirana u suvremenom arhitektonskom stilu, s naglaskom na kvalitetnu gradnju i funkcionalan raspored prostora, prilagođen potrebama suvremenog načina života.
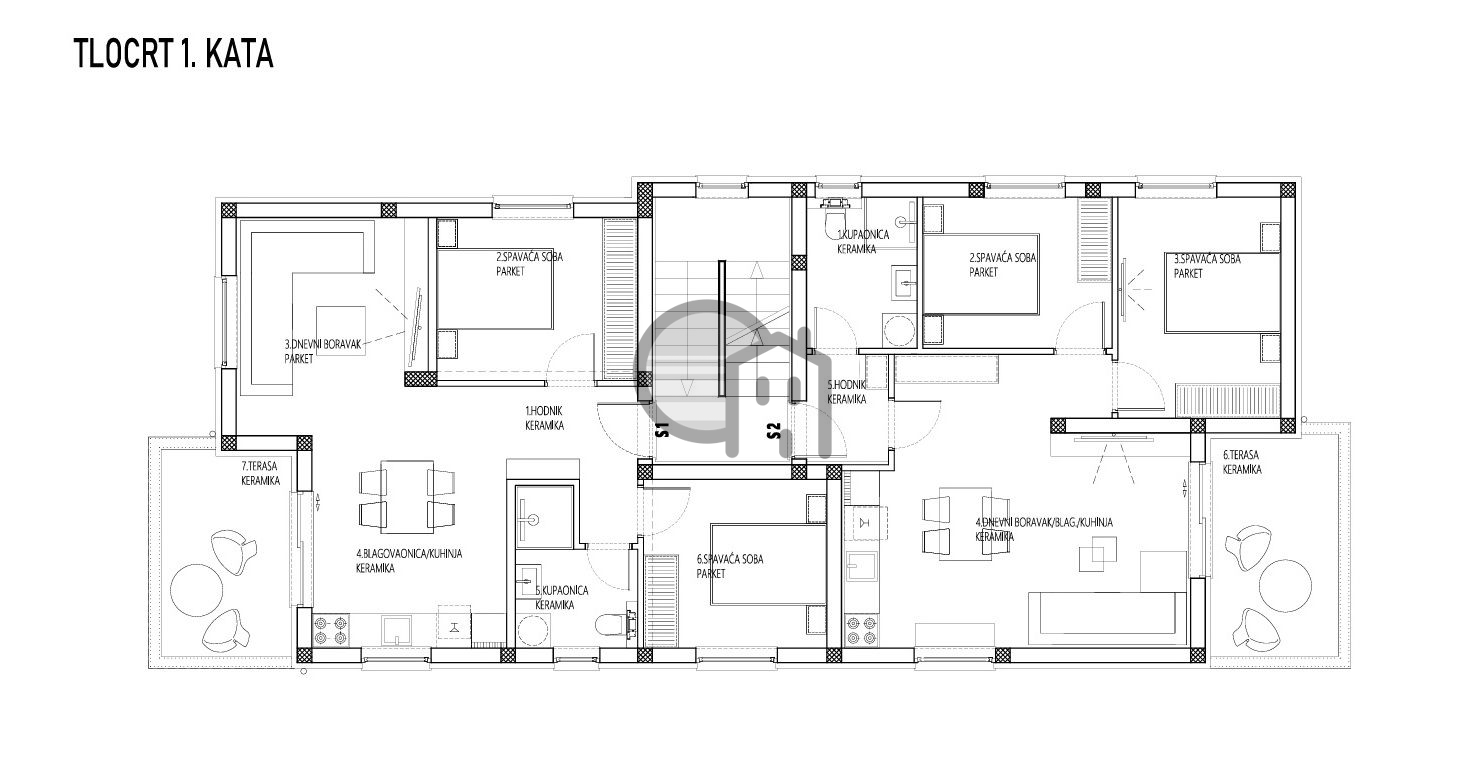
Stan S1 ima ukupnu stambenu površinu od 57,71 m² i nudi ugodan, dobro organiziran dvosoban prostor s pripadajućom terasom, idealnom za opuštanje i boravak na otvorenom. Cijena stana iznosi 196.214,00 eura, odnosno 3.400 eura po četvornom metru.
Stan S2 površine je 56,97 m², također dvosoban, s terasom i jednako funkcionalnim rasporedom, a njegova cijena iznosi 193.698,00 eura, što također odgovara cijeni od 3.400 eura po četvornom metru. Svakom stanu pripada jedno vanjsko nenatkriveno parkirno mjesto.
Lokacija nekretnine iznimno je povoljna – more, centar mjesta i prva plaža udaljeni su svega 350 metara, što omogućuje ugodnu i laganu šetnju do svih važnih sadržaja. Upravo zbog toga stanovi su izvrstan izbor kako za cjelogodišnje stanovanje, tako i za odmor ili kao investicija za turistički najam.
Početak gradnje planiran je početkom 2026. godine, dok je završetak radova i useljenje predviđeno krajem 2026. ili početkom 2027. godine, što budućim vlasnicima ostavlja dovoljno vremena za planiranje, odabir detalja i prilagodbu prostora vlastitim željama. Ova nekretnina predstavlja odličnu priliku za kupnju kvalitetnog stana u mirnom okruženju, a istovremeno u neposrednoj blizini mora i svih potrebnih sadržaja.
ENG
DEU
HRV