New construction in Primošten with a view of the sea (Dolac area)! We present a new project under construction with a total of 8 residential units. The location of the future building is on a slight hill, which allows a view of the open sea. The distance to the first restaurants and the beach is a few minutes walk. Each apartment includes one outdoor parking space in the price. A planned deadline for the completion of the project and occupancy is at the end of 2024. The apartments will be fully finished, air-conditioned, and bathrooms fully equipped. It remains for future buyers to arrange the interior according to their wishes with furniture.
Primošten, a beautiful Dalmatian town, the pearl of the Adriatic, is only a few minutes away by car. It is known for its long, pebbly beaches and characteristic narrow streets in the old town, as well as numerous catering and tourist facilities. Due to its proximity to the marina, it is also an excellent choice for boaters. It is located near the cities of Split and Šibenik, and the airport is only 40 kilometers away.
NOTE: the ad uses 3Drenders and the actual condition may not be shown exactly as in the 3D photos.
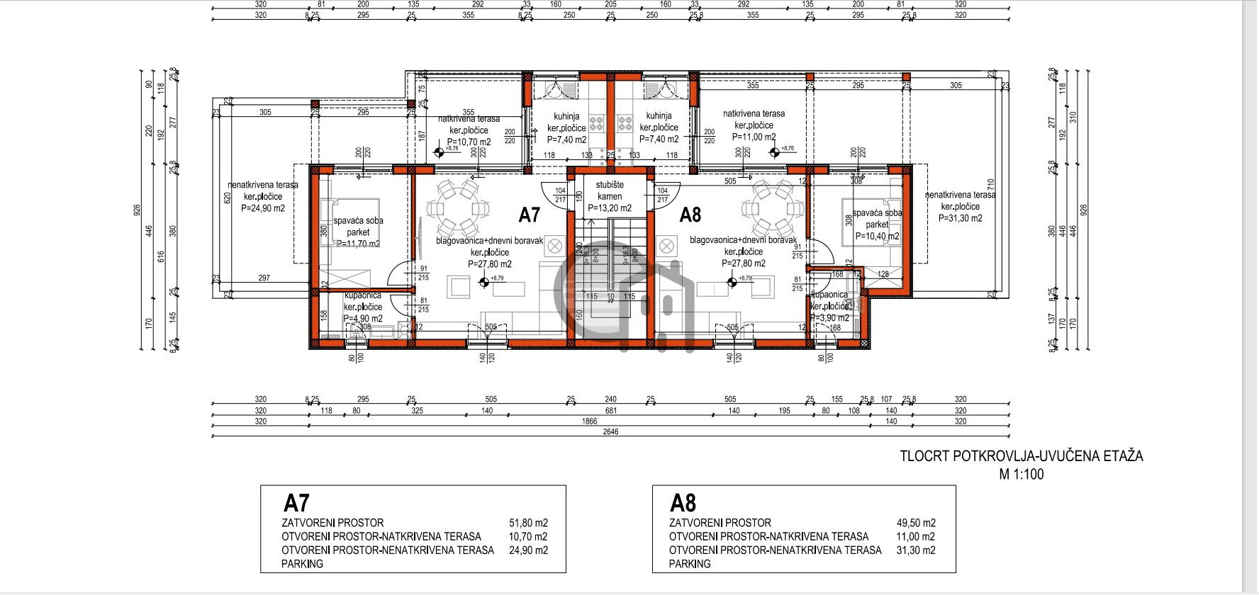
Available apartments:
Ground floor:
S1 - dining room, kitchen, 2 bedrooms, 2 bathrooms, hall, loggia and parking space. Total housing: 73.2 m2 + loggia 7.6 m2 + parking 13.25 m2 + garden = 272,000.00 EUR
S2- dining room, kitchen, 2 bedrooms, 2 bathrooms, 2 hallways, loggia and parking space. Total housing: 75.8 m2 + loggia 7.6 m2 + parking 13.25 m2 + garden = 280,000.00 EUR
First floor:
S3- dining room, kitchen, 2 bedrooms, 2 bathrooms, hall, loggia and parking space. Total housing: 72.80 m2 + loggia 7.6 m2 + parking 13.25 m2 = 288,000.00 EUR
S4- dining room, kitchen, 2 bedrooms, 2 bathrooms, 2 hallways, loggia and parking space. Total housing: 75.40 m2 + loggia 7.6 m2 + parking 13.25 m2 = 297,000.00 EUR
Second floor:
S5 - dining room, kitchen, 2 bedrooms, 2 bathrooms, hall, loggia and parking space. Total housing: 75.60 m2 + loggia 7.6 m2 + parking 13.25 m2 = 307,000.00 EUR
S6- dining room, kitchen, 2 bedrooms, 2 bathrooms, 2 hallways, loggia and parking space. Total housing: 78.30 m2 + loggia 7.6 m2 + parking 13.25 m2 = 316,000.00 EUR
ENG
DEU
HRV