We present an exceptional opportunity to purchase a modern apartment in a newly constructed building, located on the first floor of an exclusive residence comprising only six units in Brodarica, just 260 meters from the sea and beach.
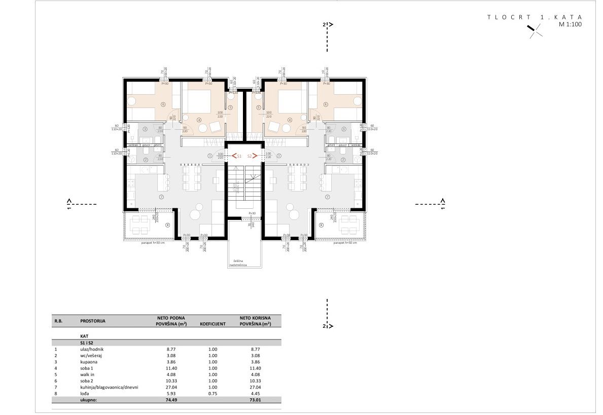
Apartment S1 offers 68.65 m² of living space, complemented by a 5.93 m² loggia, totaling 73 m². An identical unit, Apartment S2, is also available. The planned move-in date is between May and June 2026.
The interior is thoughtfully designed to maximize comfort and functionality. It features a spacious living room with an open-plan kitchen and dining area, two comfortable bedrooms, a bathroom with underfloor heating, an additional WC/laundry room, and a loggia for outdoor relaxation.
Modern amenities include air conditioning in every room, underfloor heating in the bathroom, and a walk-in closet in the master bedroom. The apartment comes with two reserved parking spaces.
The building is situated in a peaceful and attractive area of Brodarica, ideal for family living or vacationing. Nearby, you'll find restaurants, cafes, sports facilities, and other conveniences, with the beach just a few minutes' walk away.
Note: The advertisement utilizes 3D renderings to illustrate the future appearance of the apartment.
For additional information and to arrange a viewing, please feel free to contact us. Don't miss the chance to secure your home in this prime location!
ENG
DEU
HRV