New Construction in Grebaštica, in an excellent location just 200 meters from the sea and the first beach.
The complex consists of 6 buildings. Each apartment has an allocated outdoor parking space.
Building Z2
Apartment S1 - €190,000Apartment S1 is located on the ground floor. It consists of two bedrooms, a bathroom, a kitchen, a living room, and an open space dining area with access to the loggia. It includes a garden of 100 m². Total net usable area is 65.03 m². - SOLD
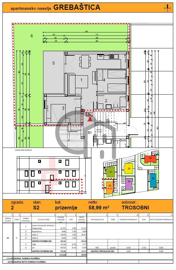
Apartment S2 - €214,000 Apartment S2 is also located on the ground floor, with a total net usable area of 61,84 m². It consists of two bedrooms, a bathroom, a kitchen, a dining area, and a living room with access to the loggia. It includes a garden of 60,67 m².
Apartment S3 - €214,000Apartment S3 is located on the first floor, with a total net usable area of 57,16 m². It consists of two bedrooms, a bathroom, a living room, a kitchen, a dining area, and a loggia.
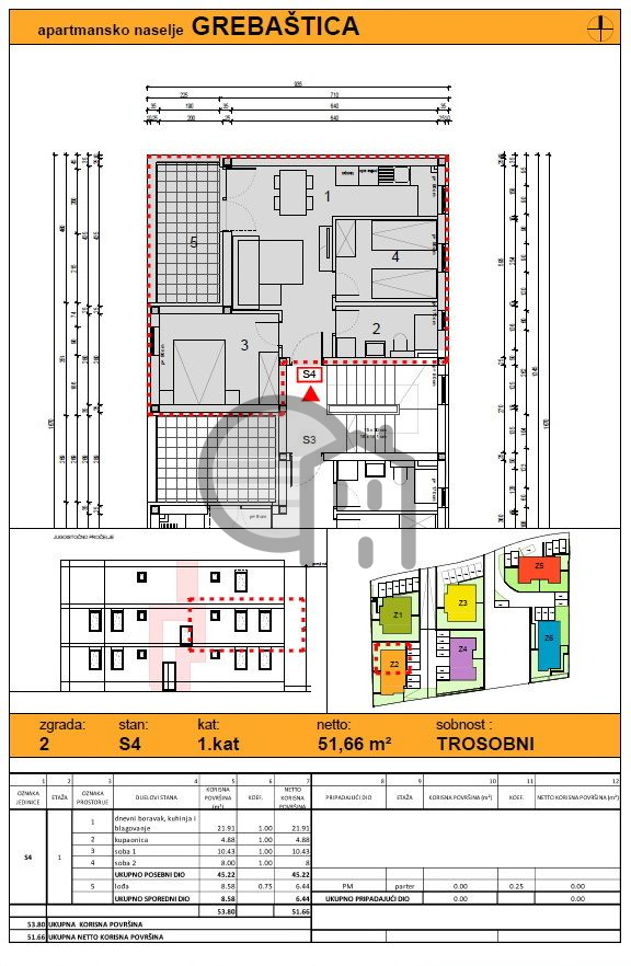
Apartment S4 - €192,000 Apartment S4 is located on the first floor, with a total net usable area of 54,87 m². It consists of two bedrooms, a bathroom, a kitchen with a dining area, and a living room with access to the loggia.
Apartment P1 - Penthouse - €385,000 The penthouse consists of an entrance hall, three bedrooms, a loggia, two bathrooms, a kitchen with a dining area, a living room with access to a covered terrace of 21.25 m². The total net area is 119,95 m².
The properties are being built by a company that is in the VAT system, so future buyers are exempt from paying the 3% property purchase tax.
NOTE: The pictures of the finished apartment are from the penthouse.
ENG
DEU
HRV