A building plot with a valid permit for a ground-floor house, auxiliary building, and swimming pool, located in a quiet suburban neighborhood of Dubrava near Šibenik. This extremely peaceful location, close to the city of Šibenik (approximately 7 minutes by car) as well as the nearest beach, ensures a pleasant lifestyle for families as well as an ideal opportunity for rental in the tourism sector.
The plot covers an area of 1,420 m² and has a nice, regular shape. Access from the main road is via a gravel path approximately 40 meters long. Foundations (basement) have already been laid on the plot, allowing immediate commencement of the project for a prefabricated house with an auxiliary building (Domoprojekt house, type Marinela).
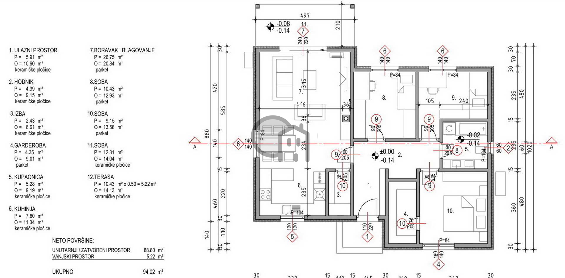
The designed residential building has maximum dimensions of 12.03 m x 10.20 m + a terrace measuring 2.10 m x 4.97 m, with a single floor (ground level). The house layout is as follows: entrance area, hallway, pantry, wardrobe, living and dining area, kitchen, bathroom, three bedrooms, and a covered terrace.
The designed auxiliary building—a standalone summer kitchen—has maximum dimensions of 5.05 m x 9.00 m and a single floor (ground level). It is planned as a summer kitchen, consisting of the kitchen itself, two storage rooms, and a covered porch.
The property also includes a planned swimming pool (32 m²) and parking for two cars.
						
 ENG
 DEU
 HRV